ЖК ГРИНВУД Greenwood на Французком бульваре ID 54143
Добавитьв избранное
350 000 USD
3 302 USD / м. кв.
комиссионные 5 %
Обновлено: 23.04.26
Одесская обл., Одесса, Приморский р-н., Французский бульвар, Французский/Шевченко
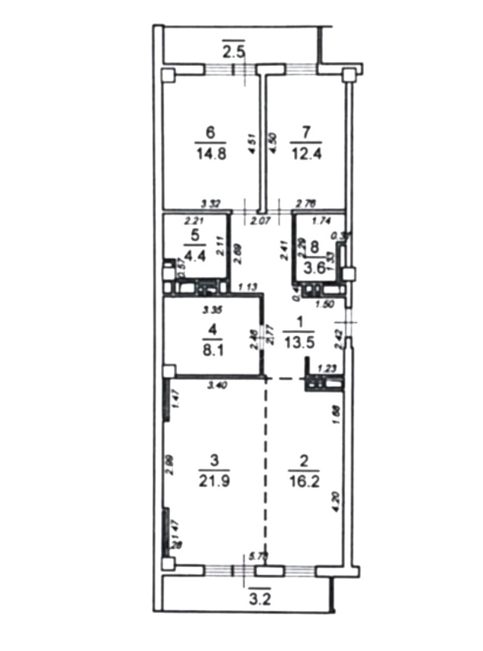
Комнат:
3
Этаж:
5
Этажность:
17
S общ. :
106 м2
Тип дома:
дому до 10-ти лет
1F-35623-401
Стильная квартира в премиальном комплексе ГРИНВУД Greenwood на Французском бульваре - возле моря и ботанического сада. Общая площадь 106 квадратных метров Распланирована в две раздельные спальни 15 и 13 кв.м, просторную кухню - гостиную 38 кв.м, два санузла и гардеробную комнату. Выполнен стильный качественный ремонт. Квартира двустороння - красивый вид на море и ботанический сад Прекрасный вариант в элитном доме Шикарная локация в первой линии моря на Французском бульваре Рядом ботанический сад, Аркадия, Сады победы, конечно же море и лучшие пляжи
